Dzień dobry, mam przyjemność przedstawić Państwu do zakupu dom o powierzchni 136,33 m2 z pięknym południowo zachodnim salonem z wyjściem do ogrodu. Wielkość działki to 350m2. Dom położony jest na zamkniętym osiedlu w pobliżu Komorowa. Inwestycja znajduje się przy ulicy Polnych Maków. Dom został oddany w 2015r.
ROZKŁAD DOMU:
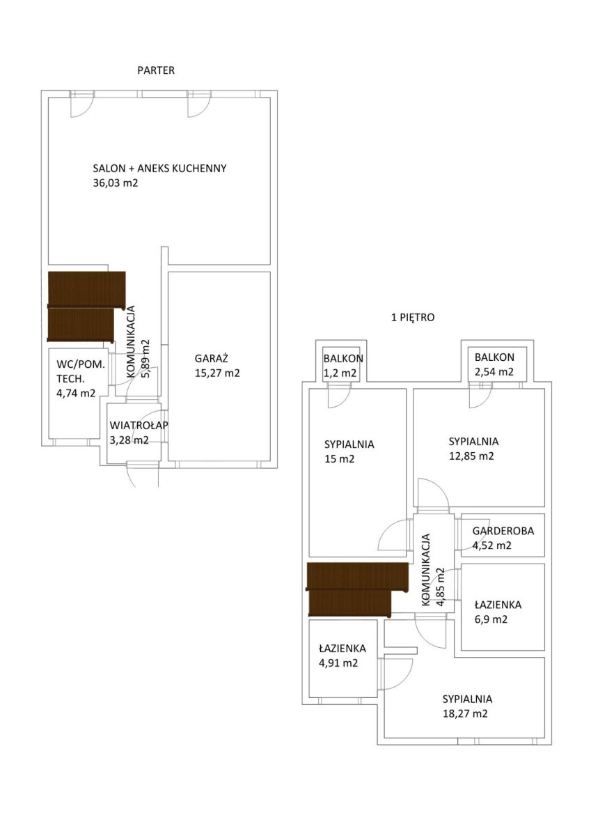
Poniżej załączam państwu parametry nieruchomości.
Parter:
-salon z aneksem kuchennym 36,03 m2
-łazienka na parterze 4,74m2
-wiatrołap 3,28m2
-hol z klatką schodową 7,79 m2
-garaż 15,27m2
Piętro:
-sypialnia 18,27 +łazienka 4,91m2
-sypialnia 15 m2,
-sypialnia 12,85m2,
-garderoba 4,52m2,
-łazienka 6,90m2
-hol z klatką schodową 6,48m2,
ZALETY DOMU:
• Inwestycja z 2015 r.: osiedle budowane w stylu skandynawskim.
• Ładnie wykończona elewacja z elementami drewnianymi dającą uczucie elegancji i prostoty.
• Wysoki standard wykończenia domu, osiedla i terenów wspólnych.
• Ładnie, przejrzyście i logicznie zaprojektowana przestrzeń domu, z której nie chce się wychodzić.
• Kuchnia oraz łazienki zostały zaprojektowane i wykonane na wymiar.
• Sprzęt AGD firmy Whirlpool.
• Armatura firmy Massi, Geberit, płytki łazienkowe Zień.
• Schody oraz podłoga na piętrze wykonana z drewna.
• Ogrzewanie podłogowe na parterze.
• Na parterze znajduje się duży, przestronny salon z kuchnią, z wyjściem na taras oraz do dużego ogrodu, korytarz, wc.
• Na piętrze znajdują się 3 duże sypialnie, 2 łazienki, garderoba.
• Dodatkowym atutem domu jest już zagospodarowane poddasze. Miejsce to zostało zagospodarowane jako dodatkowa przestrzeń do przechowywania sprzętu sportowego, sprzętu podróżniczego. Taka przestrzeń przydaje się w każdym domu.
• Duże przestronne drewniane okna z widokiem na zieleń, doświetlają salon oraz pokoje na piętrze.
• W dwóch łazienkach są okna.
• Taras oraz 2 balkony.
• Wysokość 2,90m- daje przyjemne uczucie przestrzeni.
• Garaż w bryle budynku. Dodatkowe miejsce postojowe przed domem.
• Na osiedlu dodatkowo parking dla gości oraz plac zabaw dla dzieci.
• Na działce domek narzędziowy na kosiarki, grill, ziemię i narzędzia ogrodnicze.
MIESIĘCZNE OPŁATY DLA RODZINY 4 OSOBOWEJ:
• Średniomiesięczna opłata za gaz: 341zł,
• Woda: 250zł,
• Prąd:200zł,
• Śmieci: 120zł,
• Wspólnota:115zł,(opłata za oświetlenie i porządek części wspólnych),
• Podatek od nieruchomości:12ł,
• Internet:85 zł,
• Telewizja:136zł
• Ochrona Solid: 90 zł
RAZEM: 1319zł
• Ogrzewanie gazowe. Piec z komorą spalania wraz z podgrzewaniem wody.
• Kanalizacja, woda miejska.
• Osiedle zamknięte, ogrodzone z własnym placem zabaw i parkingiem dla gości.
• Dom jest gotowy do wprowadzenia, nie wymaga remontu.
KOMUNIKACJA, SZKOŁY, OKOLICA:
-Stacja kolejki WKD w Komorowie wraz z Park&Ride z parkiem (plac zabaw i siłownia plenerowa).
-Stacja PKP Parzniew.
-Przedszkole w Michałowicach
-Zespół szkół imienia Marii Dąbrowskiej w Komorowie (szkoła podstawowa oraz liceum ogólnokształcące)
-Kompleks basenów w Strzeniówce
-Parafia Narodzenia Najświętszej Mayi Panny w Komorowie
CIEKAWE MIEJSCA W OKOLICY:
-Zalew w Komorowie
-Staw Smug w Nowej Wsi
-Aleja Starych Lip w Komorowie
-Las w Komorowie oraz lasy Młochowskie aż do Podkowy Leśnej wraz z trasami rowerowymi i konnymi
-Kaliszowy Gaik w Komorowie
-Park Potulickich ze stawami w Pruszkowie
-Park Żwirowisko w Pruszkowie (po drugiej stronie osiedla)
-Korty tenisowe w Komorowie oraz w Granicy (wraz z zapleczem sportowym)
Dom jest gotowy do wprowadzenia.
Cena domu z całym wyposażeniem wynosi 1790.000 złotych.
Zapraszam na spotkanie.
1 790 000,00 PLN (13 129,91 PLN)
Dom dla rodziny 2+2 | Blisko Komorowa | WKD - Sprzedane
Dom (Segment środkowy) na sprzedaż,
Nowa Wieś, Polnych Maków
Dane szczegółowe
- Typ transakcji: sprzedaż
- Typ nieruchomości: Dom
- Lokalizacja: Nowa Wieś, Polnych Maków
- Powierzchnia:136,33 m2
- Liczba pokoi: 4
- Rok budowy: 2015
- Liczba pięter: 1
-
Powierzchnia działki:
350 m2
- Numer oferty: EC625496
- Cena: 1 790 000,00 PLN
- Cena za m2: 13 129,91 PLN